
Скачать полное описание
Технические характеристики
|
Серия |
Р113 |
Р123 |
|
Материал корпуса клапана |
Серый чугун |
Высокопрочный чугун |
|
Номинальный диаметр DN |
15 – 200 |
|
|
Условное давление PN |
PN16 |
PN25 (DN15-80) PN16 (DN100-200) |
|
Температура рабочей среды |
От -10 °C до +220 °C |
От -30 °C до +220 °C |
|
Рабочая среда |
Вода, пар, сжатый воздух, и другие среды, совместимые с материалами конструкции клапана |
|
|
Характеристики регулирования |
Линейная / равнопроцентная / отсечная |
|
|
Диапазон регулирования |
30:1 |
|
|
Пропускная способность клапана, Kvs |
0,1–630 м3/ч |
0,1–630 м3/ч |
|
Компенсация давления |
Разгруженный / неразгруженный по давлению |
|
|
Класс герметичности |
VI по ГОСТ 9544-2015 (уплотнение по затвору EPDM/PTFE) |
|
|
IV по ГОСТ 9544-2015 (уплотнение по затвору «металл-металл») |
||
|
Тип присоединения |
Фланцевый по ГОСТ 33259-2015 |
|
|
Тип управления |
Электропривод / пневмопривод |
|
Коэффициент начала кавитации Z
| DN | 15 | 20 | 25 | 32 | 40 | 50 | 65 | 80 | 100 | 125 | 150 | 200 |
| Z | 0,5 | 0,5 | 0,5 | 0,5 | 0,5 | 0,5 | 0,45 | 0,4 | 0,35 | 0,35 | 0,35 | 0,3 |
Пропускные способности клапана (неразгруженное исполнение)
Линейная/равнопроцентная характеристика
| DN | Kvs, м3/ч | |||||||||||||||||||||
| 0,1 | 0,16 | 0,25 | 0,4 | 0,6 | 1 | 1,6 | 2,5 | 4 | 6,3 | 10 | 16 | 25 | 40 | 63 | 80 | 125 | 160 | 200 | 250 | 400 | 630 | |
| Ход штока, мм | ||||||||||||||||||||||
| 15 | 10 | 10 | 10 | 10 | 10 | 10 | 10 | 10 | 10 | – | – | – | – | – | – | – | – | – | – | – | – | – |
| 20 | 10 | 10 | 10 | 10 | 10 | 10 | 10 | 10 | 10 | 10 | – | – | – | – | – | – | – | – | – | – | – | – |
| 25 | 10 | 10 | 10 | 10 | 10 | 10 | 10 | 10 | 10 | 10 | 20 | – | – | – | – | – | – | – | – | – | – | – |
| 32 | – | – | – | – | – | – | – | – | – | 10 | 20 | 20 | – | – | – | – | – | – | – | – | – | – |
| 40 | – | – | – | – | – | – | – | – | – | – | 20 | 20 | 20 | – | – | – | – | – | – | – | – | – |
| 50 | – | – | – | – | – | – | – | – | – | – | – | 20 | 20 | 20 | – | – | – | – | – | – | – | – |
| 65 | – | – | – | – | – | – | – | – | – | – | – | – | 20 | 20 | 30 | – | – | – | – | – | – | – |
| 80 | – | – | – | – | – | – | – | – | – | – | – | – | – | 20 | – | 30 | 30 | – | – | – | – | – |
| 100 | – | – | – | – | – | – | – | – | – | – | – | – | – | – | – | 30 | 30 | 30 | – | – | – | – |
| 125 | – | – | – | – | – | – | – | – | – | – | – | – | – | – | – | – | 30 | – | 30 | 50 | – | – |
| 150 | – | – | – | – | – | – | – | – | – | – | – | – | – | – | – | – | – | – | 30 | 50 | 50 | – |
| 200 | – | – | – | – | – | – | – | – | – | – | – | – | – | – | – | – | – | – | – | 50 | 50 | 75 |
Отсечная характеристика
| DN | 15 | 20 | 25 | 32 | 40 | 50 | 65 | 80 | 100 | 125 | 150 | 200 |
| Kvs, м3/ч | 4,8 | 7,5 | 12 | 20 | 30 | 50 | 80 | 135 | 200 | 300 | 480 | 750 |
| Ход, мм | 10 | 10 | 20 | 20 | 20 | 20 | 30 | 30 | 30 | 50 | 50 | 75 |
Пропускные способности клапана (разгруженное исполнение)
Линейная/равнопроцентная характеристика
| DN | Kvs, м3/ч | ||||||||||
| 16 | 25 | 40 | 63 | 80 | 125 | 160 | 200 | 250 | 400 | 630 | |
| Ход штока, мм | |||||||||||
| 50 | 20 | 20 | 20 | – | – | – | – | – | – | – | – |
| 65 | – | 30 | 30 | 30 | – | – | – | – | – | – | – |
| 80 | – | – | 30 | – | 30 | 30 | – | – | – | – | – |
| 100 | – | – | – | – | 30 | 30 | 30 | – | – | – | – |
| 125 | – | – | – | – | – | 50 | – | 50 | 50 | – | – |
| 150 | – | – | – | – | – | – | – | 50 | 50 | 50 | – |
| 200 | – | – | – | – | – | – | – | – | 75 | 75 | 75 |
Примечание: по запросу доступны другие значения Kvs.
Отсечная характеристика
| DN | 50 | 65 | 80 | 100 | 125 | 150 | 200 |
| Kvs, м3/ч | 50 | 80 | 135 | 200 | 300 | 480 | 750 |
| Ход, мм | 20 | 30 | 30 | 30 | 50 | 50 | 75 |
Спецификация материалов

|
№ |
Наименование |
Материал |
|
|
Р113 |
Р123 |
||
|
1 |
Корпус |
Серый чугун GG25 |
Высокопрочный чугун ВЧ40 |
|
2 |
Крышка |
Сталь 20 |
Сталь 20 |
|
3 |
Седло |
Сталь 20Х13 |
|
|
4 |
Плунжер |
Сталь 20Х13 |
|
|
5 |
Шток |
Сталь 20Х13 |
|
|
6 |
Направляющая |
PTFE/Бронза |
|
|
7 |
Сальник |
PTFE/Графит |
|
|
8 |
Уплотнение корпуса |
Графлекс |
|
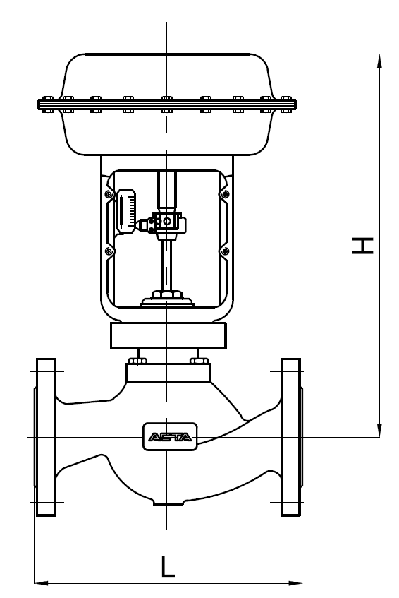
Массогабаритные характеристики


Неразгруженное исполнение клапана
|
DN |
L, мм |
H, мм |
Масса, кг* |
|||||||||
|
ЭПР / ЭПА |
ППМ |
|||||||||||
|
0,6кН |
1,8кН |
4,0 кН |
10,0кН |
14,0кН |
25 кН |
350 |
560 |
900 |
1500 |
|||
|
15 |
130 |
371 |
411 |
– |
– |
– |
– |
403 |
– |
– |
– |
3,2 |
|
20 |
150 |
366 |
406 |
– |
– |
– |
– |
398 |
– |
– |
– |
3,8 |
|
25 |
160 |
376 |
416 |
– |
– |
– |
– |
408 |
– |
– |
– |
4,5 |
|
32 |
180 |
377 |
417 |
567 |
– |
– |
– |
409 |
– |
– |
– |
6,9 |
|
40 |
200 |
– |
425 |
575 |
– |
– |
– |
417 |
512 |
– |
– |
9,6 |
|
50 |
230 |
– |
419 |
569 |
– |
– |
– |
411 |
506 |
– |
– |
11,9 |
|
65 |
290 |
– |
– |
630 |
675 |
887 |
– |
– |
573 |
– |
– |
19,0 |
|
80 |
310 |
– |
– |
628 |
673 |
885 |
– |
– |
566 |
– |
– |
25,0 |
|
100 |
350 |
– |
– |
– |
682 |
894 |
– |
– |
575 |
– |
– |
37,0 |
|
125 |
400 |
– |
– |
– |
734 |
946 |
946 |
– |
– |
752 |
– |
65,0 |
|
150 |
480 |
– |
– |
– |
– |
978 |
978 |
– |
– |
784 |
– |
75,0 |
|
200 |
600 |
– |
– |
– |
– |
– |
996 |
– |
– |
– |
1002 |
120,0 |
* – масса клапана указана без учёта привода
Разгруженное исполнение клапана
|
DN |
L, мм |
H, мм |
Масса, кг* |
|||||||||
|
ЭПР / ЭПА |
ППМ |
|||||||||||
|
0,6кН |
1,8кН |
4,0 кН |
10,0кН |
14,0кН |
25 кН |
350 |
560 |
900 |
1500 |
|||
|
50 |
230 |
402 |
442 |
– |
– |
– |
– |
434 |
535 |
655 |
855 |
11,9 |
|
65 |
290 |
– |
480 |
630 |
– |
– |
– |
472 |
573 |
693 |
893 |
19,0 |
|
80 |
310 |
– |
478 |
628 |
– |
– |
– |
– |
566 |
688 |
888 |
25,0 |
|
100 |
350 |
– |
– |
637 |
– |
– |
– |
– |
575 |
700 |
900 |
37,0 |
|
125 |
400 |
– |
– |
694 |
734 |
– |
– |
– |
– |
752 |
952 |
65,0 |
|
150 |
480 |
– |
– |
721 |
762 |
978 |
– |
– |
– |
784 |
984 |
75,0 |
|
200 |
600 |
– |
– |
– |
– |
996 |
996 |
– |
– |
– |
1002 |
120,0 |
* – масса клапана указана без учёта привода
Скачать (разгруженный по давлению)
Скачать (неразгруженный по давлению)

Скачать ТР ТС 010

Скачать ТР ТС 012

Скачать ТР ТС 032

Скачать гигиенический сертификат

Скачать СЕРТЭНЕРГО

Скачать сертификат сейсмостойкости
АСТА Р100 DN15 + ЭПА_ЭПР 0,6 скачать
АСТА Р100 DN20 + ЭПА_ЭПР 0,6 скачать
АСТА Р100 DN25 + ЭПА_ЭПР 0,6 скачать
АСТА Р100 DN32 + ЭПА_ЭПР 1,8кН скачать
АСТА Р100 DN40 + ЭПА_ЭПР 1,8кН скачать
АСТА Р100 DN40 + ЭПА_ЭПР 204 скачать
АСТА Р100 DN50 + ЭПА_ЭПР 1,8кН скачать
АСТА Р100 DN50 + ЭПА_ЭПР 204 скачать
АСТА Р100 DN50 + ЭПА_ЭПР 210 скачать
АСТА Р100 DN65 + ЭПА_ЭПР 1,8кН скачать
АСТА Р100 DN80 + ЭПА_ЭПР 204 скачать
АСТА Р100 DN100 + ЭПА_ЭПР 204 скачать
АСТА Р100 DN125 + ЭПА_ЭПР 204 скачать
АСТА Р100 DN125 + ЭПА_ЭПР 210 скачать
АСТА Р100 DN200 + ЭПА_ЭПР 314 скачать
АСТА Р100 PN40 DN200 + ЭПА_ЭПР 314 скачать
АСТА Р113 DN150 + ЭПА_ЭПР 210 скачать
АСТА Р123 DN65 + ЭПА_ЭПР 204 скачать
Информация о доставке
Скачать опросный лист для подбора клапана регулирующего с электроприводом
Скачать опросный лист для подбора клапана регулирующего с пневмоприводом





