Цена по запросу.
Технические характеристики
|
Типоразмеры |
25х25-80х50 |
|
Рабочая среда |
Высокотемпературные жидкости (конденсат, масла и другие) |
|
Максимальная температура |
+250 °С |
|
Минимальная температура |
-10 °С |
|
Присоединение |
Фланцевое по EN1092-1 PN16, внутренняя резьба ISO 7/1 Rp (BS21) (резьбовой фланец), остальное по запросу |
|
Установка |
Горизонтальная в соответствии с инструкцией по монтажу |
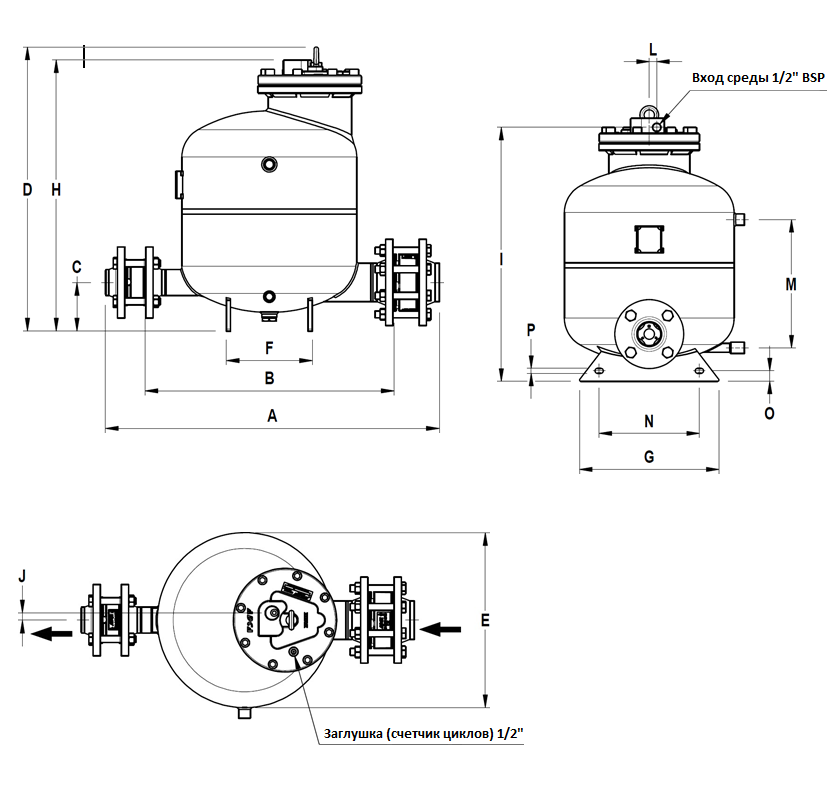
Весогабаритные характеристики

| DN | А* | B | C | D | E | H | I | J | L | M | Вес, кг | Объем, дм3 |
| 25 | 578 | 444 | 122 | 552 | 323 | 552 | 500 | 17 | 18 | 229 | 60 | 25,7 |
| 40 | 615 | 454 | 122 | 552 | 323 | 552 | 500 | 17 | 18 | 229 | 61 | 25,7 |
| 40х25 | 597 | 449 | 122 | 552 | 323 | 552 | 500 | 17 | 18 | 229 | 60 | 25,7 |
А* – с приварными воротниковыми фланцами EN 1092-1.
Габаритные размеры могут отличаться при запросе с резьбовыми фланцами.
Спецификация материалов

| № | Наименование | Материал POP-LCS |
Материал |
| 1 | Корпус насоса | P265GH / 1.0425; P235GH / 1.0345; S235JRG2 / 1.0038 |
AISI 316 / 1.4401; |
| 2 | Крышка | GJS-400-15 / 0.7040; ASTM A216WCB / 1.0619 |
AISI 316 / 1.4401; |
| 3 | *Прокладка крышки | Безасбестовая | Безасбестовая |
| 4 | * Впускной клапан / Седло в сборе | Нержавеющая сталь | Нержавеющая сталь |
| 5 | * Выпускной клапан / Седло в сборе | Нержавеющая сталь | Нержавеющая сталь |
| 6 | Внутренний механизм | Нержавеющая сталь | Нержавеющая сталь |
| 7 | *Поплавок | Нержавеющая сталь | Нержавеющая сталь |
| 8 | * Пружинная сборка (2 ед.) | Инконель | Инконель |
| 9.1 | * Выпускной обратный клапан RD40 | CF8M / 1.4408 | CF8M / 1.4408 |
| 9.2 | * Впускной обратный клапан RD40 | CF8M / 1.4408 | CF8M / 1.4408 |
| 10 | Болты | Сталь 8.8 | A2-70 |
| 11 | ** Фланцы PN16 EN 1092-1 | P250GH / 1.0460 | AISI 316 / 1.4401 |
* Доступные запчасти
** Приварные фланцы EN 1092-1. Резьбовые фланцы по запросу
Информация о доставке





