Цена по запросу.
Скачать полное описание
Технические характеристики
|
Номинальный диаметр, DN |
25х25; 40х40; 50х50; 80х50; 100х100 |
|
Управляющее давление, Pупр |
0,5–10 бар |
|
Максимальное давление в ресивере |
0,5 бар – по «открытой схеме» 10 бар – по «закрытой схеме» |
|
Температура рабочей среды, не более |
185°С |
|
Рабочая среда |
Конденсат водяного пара |
|
Минимальная плотность |
800 кг/м3 |
|
Максимальная кинематическая вязкость |
35,2 сСт |
|
Объем жидкости, перекачиваемой за 1 цикл |
16 л – DN 25–50 25 л – DN 80х50 325 л – DN 100 |
|
Тип присоединения |
Фланцевый по ГОСТ 33259-2015, |
|
Монтажное положение |
Горизонтальное |
|
*- по запросу |
|
Конструкция установки

“Открытая” схема установки

“Закрытая” схема установки

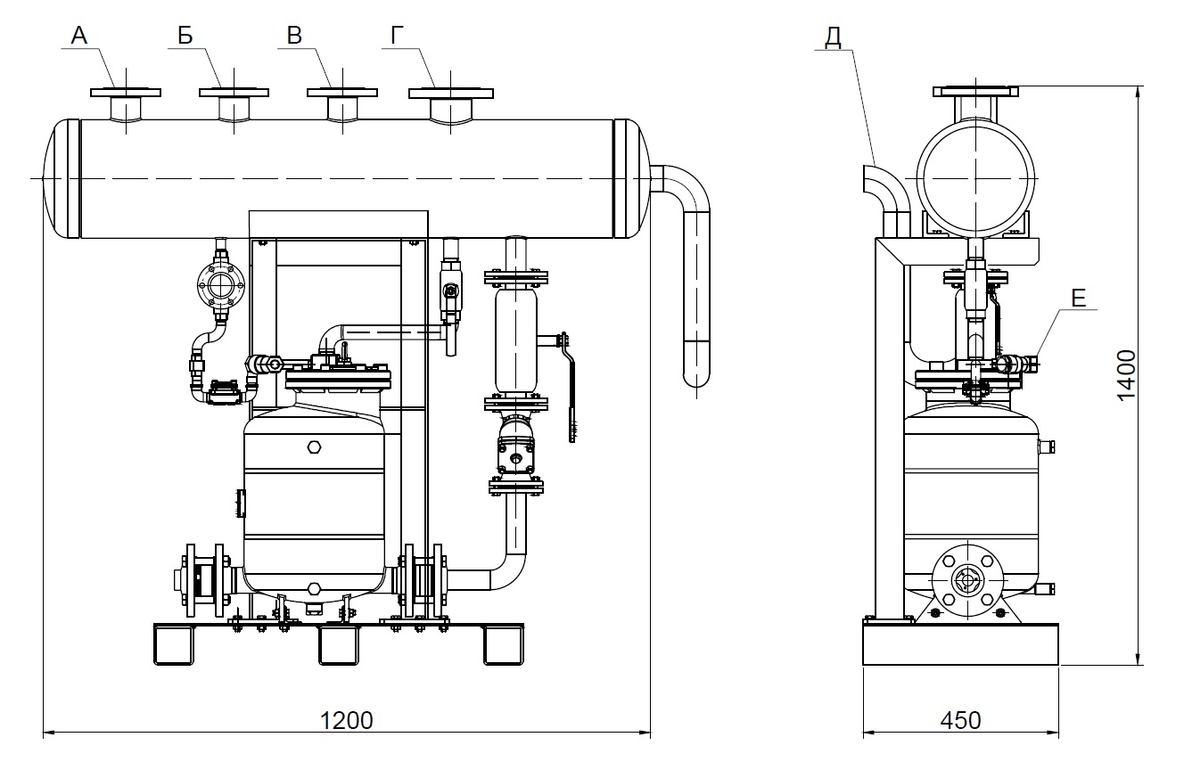
Габаритные характеристики

|
А |
Патрубки входа конденсата |
|
Б |
|
|
В |
|
|
Г |
Атмосферный выходной патрубок |
|
Д |
Переливной трубопровод |
|
Е |
Патрубок подачи |
Маркировка установки
|
|
АСТА |
– |
УНКО |
1 |
3 |
3 |
– |
А |
П |
– |
3 |
DN |
50х80 |
PN |
10 |
T |
250 |
|
Торговая марка |
АСТА |
– |
|
|
|
|
|
|
|
|
|
|
|||||
|
Тип |
УНКО |
||||||||||||||||
|
Количество насосов, шт |
… |
||||||||||||||||
|
Материал корпуса насоса |
|||||||||||||||||
|
Углеродистая сталь |
3 |
||||||||||||||||
|
Нержавеющая сталь |
4 |
||||||||||||||||
|
Тип присоединения патрубков |
|||||||||||||||||
|
Резьбовой (тип резьбы, не указывать для исп. G) |
1 |
||||||||||||||||
|
Фланцевый (исп. уплотнительной поверхности, не указывать для исп. В) |
3 |
||||||||||||||||
|
Под приварку |
4 |
||||||||||||||||
|
Тип схемы |
|||||||||||||||||
|
«Открытая» (ресивер соединен с атмосферой) |
– |
А |
|||||||||||||||
|
«Закрытая» (ресивер под давлением) |
– |
Д |
|||||||||||||||
|
Управляющая среда |
|||||||||||||||||
|
Пар |
П |
||||||||||||||||
|
Воздух |
В |
||||||||||||||||
|
Количество входов в ресивер (патрубков) |
… |
||||||||||||||||
|
Условный диаметр, DN |
… |
||||||||||||||||
|
Условное давление, PN |
… |
||||||||||||||||
|
Максимальная температура рабочей среды, Tmax, °С |
… |
||||||||||||||||
Информация о доставке

Скачать опросный лист для установки сбора и возврата конденсата УНКО





